Promoc. Mayor Antigua - Promociones y Contratas del Carrión - Prococasa

Vaya al Contenido

Menu Principal:

Las mejores calidades en una construcción nueva y céntrica en Palencia


La empresa PROCOCASA ha iniciado la construcción y promoción de viviendas en una excepcional zona de Palencia, la Calle Mayor Antigua, Nº 98-100. Zona céntrica en la capital y con unas comunicaciones de primera.
Viviendas muy próximas a unas de las principales zonas verdes de la ciudad, como es la Isla Dos Aguas y al río Carrión de Palencia.

También estará a escasos metros de la Iglesia de San Miguel y, por lo tanto, del centro de la ciudad, a través de la propia Iglesia de San Miguel o a través de la calle Marqués de Albaida, que le situará en la misma Calle Mayor, a la altura de la estatua a la Mujer Palentina.

Le ofrecemos amplia información sobre cómo serán las viviendas y oficinas que construiremos próximamente.

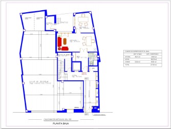
Plano Planta Baja

Plano Planta Baja Oficina 1

Plano Planta Sótano

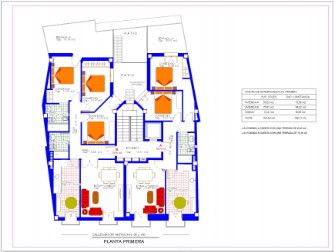
Plano Planta Primera

Plano Planta Primera 1º A

Plano Planta Primera 1º B

Plano Planta Segunda

Plano Planta Segunda 2º A

Plano Planta Segunda 2º B

Plano Planta Tercera

Plano Planta Tercera 3º A

Plano Planta Tercera 3º B

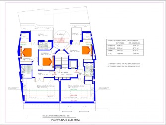
Plano Bajo-Cubierta

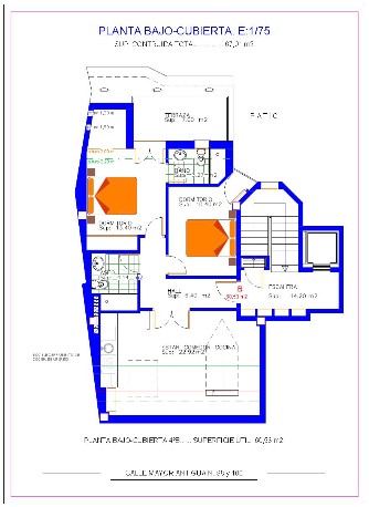
Plano Bajo-Cubierta 4º A

Plano Bajo-Cubierta 4º B

 
 
Regreso al contenido | Regreso al menu principal